Tổng quan về bản vẽ nhà cấp 4: Nền tảng cho ngôi nhà mơ ước 2026
Bản vẽ nhà cấp 4 hiện đang là mô hình nhà ở có tính ứng dụng vô cùng cao và được rất nhiều gia chủ quan tâm lựa chọn khi có ý định xây dựng tổ ấm. Trong bối cảnh năm 2026, nhu cầu về một không gian sống tiện nghi, đẹp mắt và tối ưu chi phí ngày càng tăng, việc sở hữu một bản vẽ nhà cấp 4 chi tiết và khoa học là yếu tố then chốt quyết định sự thành công của công trình.
Một bản vẽ nhà cấp 4 không chỉ là những đường nét kỹ thuật mà còn là “bộ não” của ngôi nhà, chứa đựng toàn bộ thông tin về kiến trúc, kết cấu, điện nước và cách bố trí công năng. Điều này giúp gia chủ hình dung rõ ràng về ngôi nhà tương lai, đồng thời là cơ sở để nhà thầu thi công chính xác, hạn chế tối đa sai sót và phát sinh chi phí. Hãy cùng chúng tôi khám phá những mẫu bản vẽ nhà cấp 4 đẹp, phổ biến và những lưu ý quan trọng để bạn có thể kiến tạo không gian sống lý tưởng cho mình.

Tầm quan trọng của bản vẽ nhà cấp 4 trong xây dựng hiện đại
Trong quá trình xây dựng, đặc biệt là với các mẫu nhà cấp 4, việc có một bản vẽ nhà cấp 4 hoàn chỉnh và chuyên nghiệp mang lại nhiều lợi ích không thể phủ nhận. Đây không chỉ là một yêu cầu bắt buộc để xin giấy phép xây dựng mà còn là công cụ quản lý, giám sát dự án hiệu quả.
Giúp hình dung rõ ràng về không gian sống
Với bản vẽ nhà cấp 4, bạn có thể dễ dàng hình dung ngôi nhà của mình sẽ trông như thế nào từ mọi góc độ. Từ cách bố trí phòng ốc, kích thước từng không gian, vị trí cửa sổ, cửa chính, cho đến hướng nhà đón gió, đón sáng. Điều này đặc biệt quan trọng để đảm bảo ngôi nhà phù hợp với phong thủy và thói quen sinh hoạt của gia đình.
Tối ưu công năng và chi phí xây dựng
Một bản vẽ nhà cấp 4 được thiết kế kỹ lưỡng sẽ giúp tối ưu hóa công năng sử dụng. Các kiến trúc sư sẽ tính toán để từng mét vuông đều có giá trị, tránh lãng phí diện tích. Đồng thời, bản vẽ chi tiết còn cho phép tính toán chính xác vật liệu cần thiết, từ đó kiểm soát ngân sách hiệu quả, tránh những phát sinh không đáng có trong quá trình thi công. Đây là yếu tố then chốt giúp bạn tiết kiệm được một khoản đáng kể.
Đảm bảo chất lượng và tính thẩm mỹ
Bản vẽ nhà cấp 4 là kim chỉ nam cho đội ngũ thi công. Khi mọi thứ được thể hiện rõ ràng trên giấy, việc xây dựng sẽ diễn ra đúng kỹ thuật, đảm bảo kết cấu vững chắc và độ bền cho công trình. Ngoài ra, các yếu tố thẩm mỹ như phối cảnh ngoại thất, chi tiết trang trí, vật liệu hoàn thiện cũng được thể hiện chi tiết, giúp ngôi nhà có vẻ đẹp hài hòa và ấn tượng.
Các mẫu bản vẽ nhà cấp 4 phổ biến theo kiểu mái nhà năm 2026
Trong xu hướng kiến trúc hiện nay, bản vẽ nhà cấp 4 được phân loại và thiết kế đa dạng, chủ yếu dựa trên kiểu dáng mái nhà. Mỗi loại mái không chỉ mang đến vẻ đẹp riêng mà còn có những ưu nhược điểm về công năng và chi phí. Cùng điểm qua các kiểu mái nhà cấp 4 được ưa chuộng nhất:
Bản vẽ nhà cấp 4 mái lệch
Mẫu bản vẽ nhà cấp 4 mái lệch hiện đại vừa đảm bảo được nhu cầu sử dụng tiện lợi, vừa tiết kiệm chi phí xây dựng, vì thế rất được nhiều gia chủ yêu thích. Đặc trưng của kiểu mái này là sự phá cách trong cấu trúc, tạo nên vẻ ngoài trẻ trung, năng động và độc đáo. Phần mái được cách điệu với hai hoặc nhiều phần mái có độ dốc và chiều cao khác nhau, mang đến hiệu ứng thị giác ấn tượng.
- Ưu điểm: Tạo không gian thông thoáng, thoát nước tốt; tính thẩm mỹ cao, phù hợp với phong cách kiến trúc hiện đại; có thể tận dụng không gian áp mái để làm kho hoặc gác lửng nhỏ.
- Nhược điểm: Yêu cầu kỹ thuật thi công cao hơn một chút so với mái truyền thống.

Bản vẽ nhà cấp 4 mái Thái
Bản vẽ nhà cấp 4 mái Thái luôn nằm trong danh sách các mẫu nhà được ưa chuộng hàng đầu nhờ vào vẻ đẹp thanh lịch, sang trọng và khả năng chống nóng, chống ẩm tốt. Đặc trưng của mái Thái là có độ dốc lớn, giúp thoát nước nhanh chóng và tạo cảm giác cao ráo, bề thế cho ngôi nhà.
- Ưu điểm: Khả năng thoát nước mưa nhanh, chống nóng hiệu quả, hạn chế tình trạng ứ đọng nước; đa dạng về kiểu dáng (mái giật cấp, mái chữ A…) tạo nên vẻ đẹp tinh tế; phù hợp với nhiều phong cách kiến trúc từ cổ điển đến hiện đại.
- Nhược điểm: Chi phí thi công có thể cao hơn một chút do kết cấu phức tạp hơn.

Bản vẽ nhà cấp 4 mái Nhật
Bản vẽ nhà cấp 4 mái Nhật, hay còn gọi là mái lùn, đang dần trở thành xu hướng mới trong kiến trúc Việt Nam những năm gần đây. Kiểu mái này có đặc điểm là độ dốc vừa phải, thường mở rộng ra các hướng, tạo sự giao thoa nhẹ nhàng với cảnh quan xung quanh. Mái Nhật mang đến vẻ đẹp tối giản, hiện đại nhưng vẫn giữ được nét Á Đông truyền thống.
- Ưu điểm: Vẻ đẹp độc đáo, hài hòa với thiên nhiên; khả năng chống nóng và thoát nước tốt; phù hợp với nhiều loại hình nhà cấp 4 từ hiện đại đến truyền thống.
- Nhược điểm: Đôi khi đòi hỏi kỹ thuật lợp ngói tỉ mỉ để đảm bảo độ bền.

Bản vẽ nhà cấp 4 mái bằng
Bản vẽ nhà cấp 4 mái bằng đại diện cho phong cách kiến trúc hiện đại, tối giản và mạnh mẽ. Kiểu mái này mang đến vẻ ngoài vững chãi, độc đáo và khả năng tận dụng không gian linh hoạt.
- Ưu điểm: Tính thẩm mỹ cao, phù hợp với kiến trúc hiện đại; dễ dàng tận dụng làm sân thượng, sân phơi hoặc khu vườn nhỏ trên mái; độ bền cao, chống chịu tốt với thời tiết khắc nghiệt.
- Nhược điểm: Cần xử lý chống thấm kỹ lưỡng để tránh tình trạng đọng nước.

Bản vẽ nhà cấp 4 mái tôn
Đây là một trong những mẫu bản vẽ nhà cấp 4 rất được ưa chuộng ở những khu vực có khí hậu khắc nghiệt hoặc những gia đình mong muốn tối ưu chi phí xây dựng. Mái tôn không chỉ có ưu điểm về giá thành mà còn đa dạng về màu sắc và kiểu dáng.
- Ưu điểm: Chi phí thấp, thời gian thi công nhanh chóng; trọng lượng nhẹ, không gây áp lực lớn lên kết cấu nhà; dễ dàng sửa chữa, bảo trì; đa dạng màu sắc và chủng loại tôn (tôn lạnh, tôn cách nhiệt…).
- Nhược điểm: Có thể gây tiếng ồn khi mưa lớn nếu không được thi công cách âm tốt; khả năng giữ nhiệt kém hơn các loại mái khác nếu không có lớp chống nóng.
Bản vẽ nhà cấp 4 theo số lượng phòng ngủ
Bên cạnh kiểu mái, số lượng phòng ngủ cũng là một tiêu chí quan trọng khi lựa chọn bản vẽ nhà cấp 4. Tùy thuộc vào số lượng thành viên và nhu cầu sử dụng mà gia chủ có thể chọn những thiết kế phù hợp.
Bản vẽ nhà cấp 4 2 phòng ngủ
Mẫu bản vẽ nhà cấp 4 2 phòng ngủ lý tưởng cho các cặp vợ chồng trẻ, gia đình có 1-2 con nhỏ hoặc người độc thân yêu thích sự rộng rãi. Thiết kế này thường có diện tích vừa phải, dễ dàng bố trí các không gian chung như phòng khách, bếp ăn liền mạch, tạo cảm giác thông thoáng. Hai phòng ngủ thường được đặt ở hai đầu nhà hoặc cạnh nhau, đảm bảo sự riêng tư nhưng vẫn thuận tiện sinh hoạt.

Bản vẽ nhà cấp 4 3 phòng ngủ
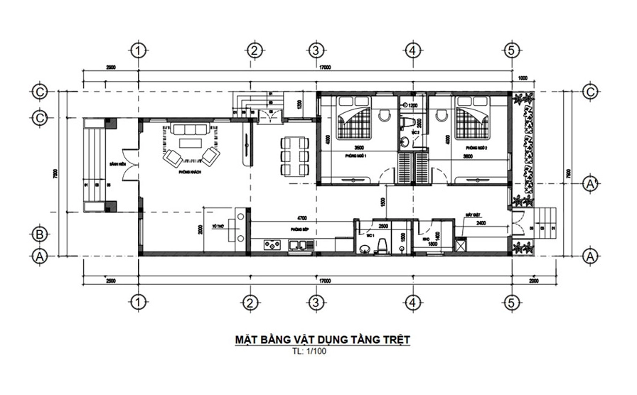
Đối với các gia đình đông thành viên hơn (3-5 người), bản vẽ nhà cấp 4 3 phòng ngủ là lựa chọn phổ biến. Thiết kế này đòi hỏi diện tích đất lớn hơn một chút để đảm bảo sự thoải mái cho từng không gian riêng tư. Bố cục thường tập trung vào việc tạo ra một không gian sinh hoạt chung rộng rãi và ba phòng ngủ được phân bổ hợp lý, có thể có 2 phòng ngủ nhỏ và 1 phòng ngủ master. Các kiến trúc sư sẽ tư vấn để tối ưu hóa sự riêng tư và tiện ích trong một tổng thể hài hòa.
Yếu tố cần lưu ý khi lựa chọn và thiết kế bản vẽ nhà cấp 4
Để có được một bản vẽ nhà cấp 4 ưng ý và phù hợp nhất với nhu cầu, gia chủ cần cân nhắc kỹ lưỡng nhiều yếu tố. Việc chuẩn bị kỹ càng ngay từ đầu sẽ giúp quá trình xây dựng diễn ra suôn sẻ và đạt hiệu quả cao nhất.
Xác định ngân sách và diện tích xây dựng
Trước khi tìm kiếm các mẫu bản vẽ nhà cấp 4, hãy xác định rõ ngân sách dự kiến và diện tích đất mà bạn sở hữu. Đây là hai yếu tố cơ bản nhất để kiến trúc sư có thể đưa ra những phương án thiết kế khả thi. Ngân sách sẽ ảnh hưởng đến việc lựa chọn vật liệu, phong cách kiến trúc và mức độ hoàn thiện của ngôi nhà.
Lựa chọn phong cách kiến trúc
Nhà cấp 4 có thể được thiết kế theo nhiều phong cách khác nhau: hiện đại, tối giản, tân cổ điển, hoặc phong cách đồng quê. Mỗi phong cách mang một vẻ đẹp và cá tính riêng. Hãy tìm hiểu và lựa chọn phong cách mà bạn yêu thích, đồng thời đảm bảo nó phù hợp với cảnh quan xung quanh và văn hóa địa phương. Phong cách nhất quán sẽ giúp ngôi nhà của bạn có sự đồng điệu và thẩm mỹ cao.
Bố trí công năng khoa học và tiện nghi
Đây là yếu tố cốt lõi của một bản vẽ nhà cấp 4 tốt. Công năng cần được bố trí sao cho phù hợp với thói quen sinh hoạt của gia đình. Ví dụ, phòng khách và bếp ăn nên được đặt gần nhau để thuận tiện cho việc tiếp khách và nấu nướng. Các phòng ngủ cần có sự riêng tư nhất định và đảm bảo ánh sáng tự nhiên, thông gió tốt. Đừng quên tính toán các không gian phụ trợ như nhà vệ sinh, kho, sân phơi một cách hợp lý.
Ngoài ra, bạn cũng có thể tham khảo thêm thông tin về các giải pháp nội thất và không gian sống tại sunnylands.vn để có thêm ý tưởng cho ngôi nhà của mình.
Tham khảo các mẫu bản vẽ đa dạng
Hiện nay có rất nhiều nguồn tài liệu để tham khảo các mẫu bản vẽ nhà cấp 4. Hãy dành thời gian tìm hiểu các thiết kế khác nhau, từ đó rút ra những ý tưởng mà bạn yêu thích và không thích. Điều này sẽ giúp bạn có cái nhìn tổng quan và cung cấp thông tin chi tiết hơn cho kiến trúc sư. Đừng ngần ngại trao đổi ý tưởng của bạn một cách cụ thể để kiến trúc sư có thể hiện thực hóa ngôi nhà mơ ước của bạn một cách tốt nhất.
Kết luận
Việc sở hữu một bản vẽ nhà cấp 4 chất lượng là bước đi đầu tiên và quan trọng nhất để kiến tạo nên một không gian sống lý tưởng trong năm 2026. Từ việc lựa chọn kiểu mái phù hợp, bố trí số lượng phòng ngủ tối ưu đến việc cân nhắc các yếu tố về ngân sách và phong cách, mỗi quyết định đều góp phần định hình ngôi nhà của bạn.
Hãy đầu tư thời gian và công sức vào giai đoạn thiết kế, tìm kiếm một đơn vị kiến trúc uy tín để biến những ý tưởng thành hiện thực trên giấy. Với một bản vẽ nhà cấp 4 hoàn chỉnh, bạn sẽ tự tin hơn trong quá trình xây dựng, đảm bảo ngôi nhà không chỉ đẹp, tiện nghi mà còn bền vững theo thời gian.
